欢迎来到 蜜蜂家装饰工程(大连)有限公司官网!
在线报价
|
在线咨询
|
咨询热线:400-008-1136
首页
装修套餐
经典套餐
名筑套餐
获取报价
核心优势
空间配置
匠心工艺
真实口碑
无忧售后
精益工程
热门小区
在建工地
样板特权
装修案例
精选案例
VR体验
设计团队
装修百科
装修攻略
装修视频
装修头条
关于我们
关于蜜蜂家
企业动态
招聘信息
蜜蜂家位置
首页
>
装修案例
>
大连装修效果图_大连装修设计_大连装修案例分享
>
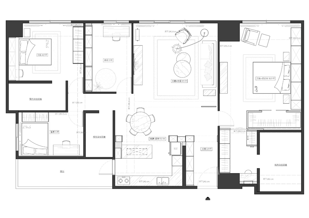
大连碧桂园·熙山郡现代简约装修效果图首席设计李牧燃
大连碧桂园·熙山郡现代简约装修效果图首席设计李牧燃
发布时间:2021-05-02 14:02:57 作者: 蜜蜂家装饰 点击:980
案例介绍
追求温暖、轻松、愉悦、充满生活气息的品质生活是现代轻奢风格设计的推动力。有着各种不同的打造方法,不局限于某种具体风格设计,用少数与众不同的、别具特色的设计与物品来彰显自己的品位与审美,通过家具、灯饰、背景墙等软装元素体现一种低调的奢华气质,形成一种奢华与实用并重的家居新风尚。
户型解析
0户
设计案例
2个
在施工地
0户
客厅
餐厅
卧室
厨房
其他
客厅
餐厅
卧室
厨房
其他
上一条:大连招商星光照澜80平混搭风格装修案例首席设计李牧燃
下一条:大连中海公园上城125平现代轻奢风格装修案例首席设计李牧燃
本案设计师
李牧燃
从业时间:
10年
擅长风格:
设计师更多作品
约设计师
蜜蜂家·参观工地
看看别人家的施工现场
*为了您的权益,您的一切信息将被严格保密
其他案例
大连中山区碧桂园东港国际装修89平轻奢风格首席设计师李牧燃
现代轻奢
李牧燃
设计师作品
大连开发区富力东堤112平工业风格首席设计李牧燃
工业风格
李牧燃
设计师作品
大连金湾拾璟142平现代轻奢风格装修案例首席设计李牧燃
现代轻奢
李牧燃
设计师作品
姓名
房屋面积
发送报价到手机
智能报价
—— 设计到您满意 ——
装修计算器
今天已有269位业主获取了装修预算
房屋户型
*
房屋面积
*
手机号码
*
为了您的权益,您的隐私将被严格保密
开始计算
10秒获取装修预算,算清少花冤枉钱
装修预算报价为
86590
元
材料费:46669 元
人工费:46669 元
设计费:6619 元
管理费:1089 元
免费量房
—— 合理规划房屋空间 精准测量 ——
隐私保护
点击验证
我们会第一时间联系您,提供专属服务
免费量房
预约成功
您已经成功预约量房,稍后我们将会把预约信息发送您手机上请注意查收,谢谢
免费设计
—— 设计到您满意 ——
中式风格
现代简约
现代轻奢
欧式风格
隐私保护
点击验证
我们会第一时间联系您,提供专属服务
免费设计
预约成功
您已经成功预约量房,稍后我们将会把预约信息发送您手机上请注意查收,谢谢
参观工地
—— 看看别人家施工现场 ——
隐私保护
点击验证
我们会第一时间联系您,提供专属服务
参观工地
预约成功
您已经成功预约量房,稍后我们将会把预约信息发送您手机上请注意查收,谢谢
预约设计师
—— 看看我家的设计方案 ——
隐私保护
点击验证
我们会第一时间联系您,提供专属服务
预约设计师
预约成功
您已经成功预约设计师,稍后我们将会把预约信息发送您手机上请注意查收,谢谢
蜜蜂家·品牌实力
发展,源于对服务客户的忠诚,我们感恩每位客户
算一算,我家装修需要多少钱
400-008-1136
装修计算器
今天已有269位业主获取了装修预算
装修类型
新房装修
老房翻新
*
房屋面积
*
手机号码
*
为了您的权益,您的隐私将被严格保密
开始计算
10秒获取装修预算,算清少花冤枉钱
装修预算报价为
86590
元
材料费:
46669
元
人工费:
46669
元
设计费:
6619
元
管理费:
1089
元
在线咨询
免费量房
智能报价
参观工地
关注我们
返回顶部
装修套餐
经典套餐
名筑套餐
获取报价
核心优势
空间配置
匠心工艺
真实口碑
无忧售后
精益工程
热门小区
在建工地
样板特权
装修案例
精选案例
VR体验
装修百科
装修攻略
装修视频
装修头条
关于我们
关于蜜蜂家
企业动态
招聘信息
蜜蜂家位置
400-008-1136
辽宁省大连市沙河口区西南路761号
辽宁省大连市金州区金马路255号
友情链接
百度
龙采
蜜蜂家装饰合作品牌蒙娜丽莎瓷砖
蜜蜂家装饰合作品牌德尔地板
蜜蜂家装饰合作品牌九牧卫浴
蜜蜂家装饰合作品牌TATA木门
蜜蜂家装饰合作品牌展志天华木门
蜜蜂家装饰合作品牌诺贝尔瓷砖
蜜蜂家装饰合作品牌伟星管
蜜蜂家装饰合作品牌飞利浦弱电系统
蜜蜂家装饰合作品牌德国都芳漆
蜜蜂家装饰合作品牌东鹏洁具
站长论坛
大连装修公司哪家好-大连高性价比的装修公司-大连蜜蜂家装饰有限公司官方网站
辽ICP备20008271号-2